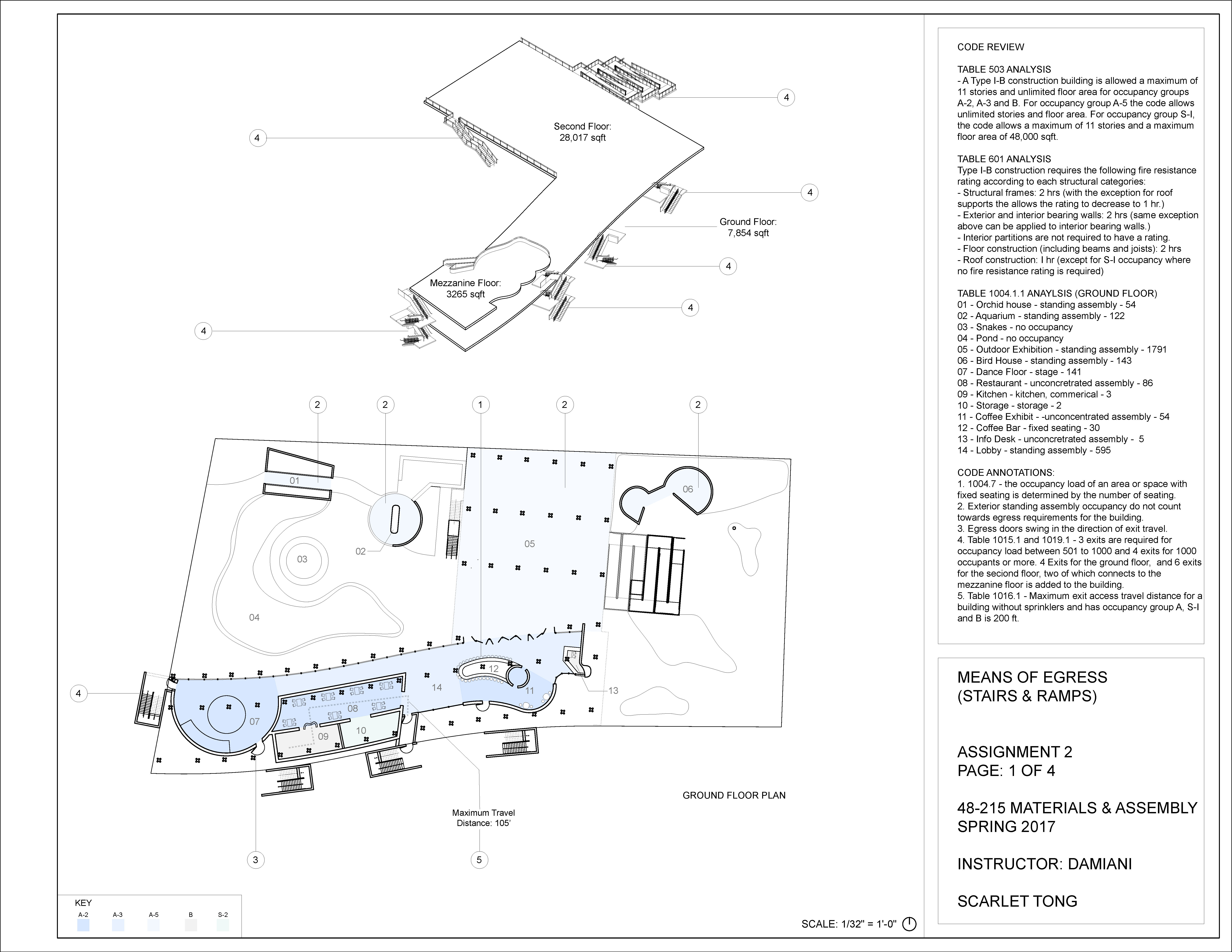
︎
Technical Drawings
[48-215] Materials and Assembly | Spring 2017